Vivienda junto a las Torres de Quart
Reforma integral de una vivienda de para una pareja en el barrio de Botánico, al lado de las torres de Quart y el casco histórico de Valencia.
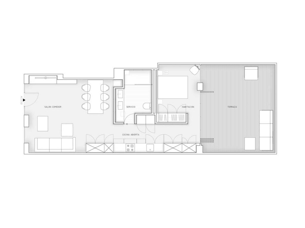
La tipología del edificio es vivienda tradicional entre medianeras, presentando espacios excesivamente compartimentados y desordenados. El cliente pretende conseguir un espacio amplio y bien iluminado, en el que el Diseño interior marque un contraste importante con el resto del edificio. Para ello en el proyecto se contempla el derribo de las particiones interiores de la vivienda y la configuración de un nuevo concepto de espacio tipo loft ,en el que aparece un cuerpo central en el que encontramos el baño y el almacenamiento tanto de salón, cocina y dormitorio.
En el diseño interior de estas nuevas particiones y del mobiliario de cocina, se han utilizado paneles laminados e iluminación led integrada.
Año: 2016
Cliente: particular
Superficie: 80 m2
Situación: Valencia
- 13 enero, 2016
