Vivienda en el Carmen.
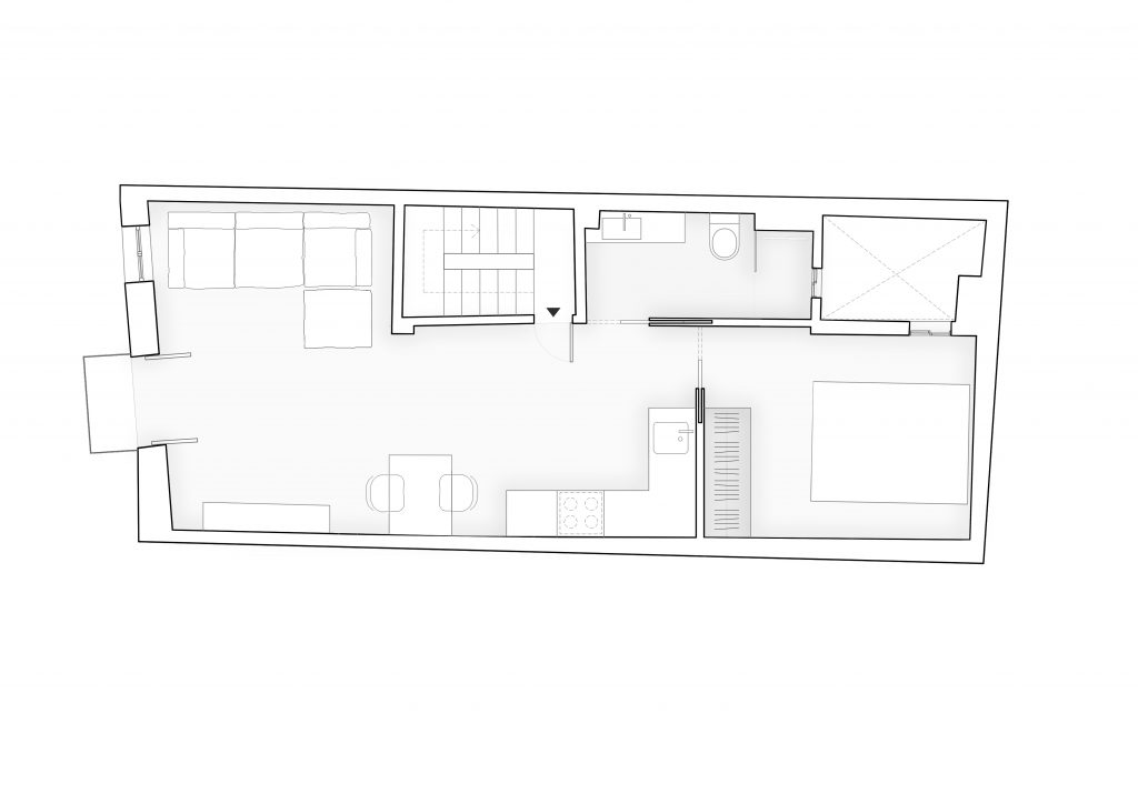
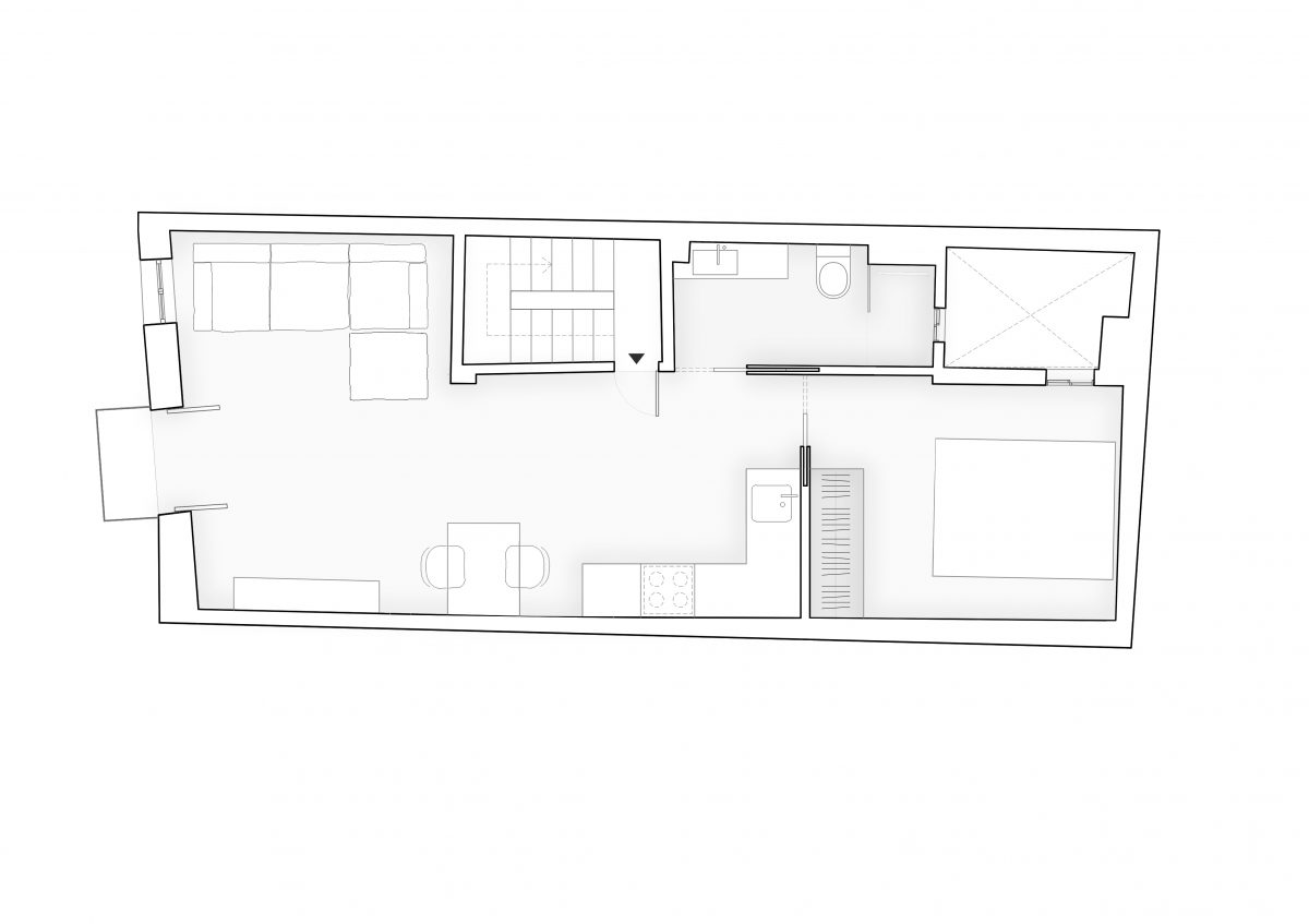
Rehabilitación de una vivienda ático para albergar un apartamento turístico en el barrio del Carmen, en pleno centro histórico de la ciudad de Valencia. Se ha derribado totalmente la tabiquería interior para una nueva distribución del espacio, más abierta y contemporánea. También se han restaurado las vigas de madera de la cubierta y se han recuperado los elementos originales de madera y ladrillo macizo existentes en la vivienda. En cuanto a la iluminación se ha realizado a base de iluminación led indirecta en toda la vivienda.
Año: 2017
Cliente: particular
Superficie: 70 m2
Situación: El Carmen, Valencia.
Fecha
- 2 diciembre, 2017
