Rehabilitación de Edifico de Viviendas en Fernando el Católico
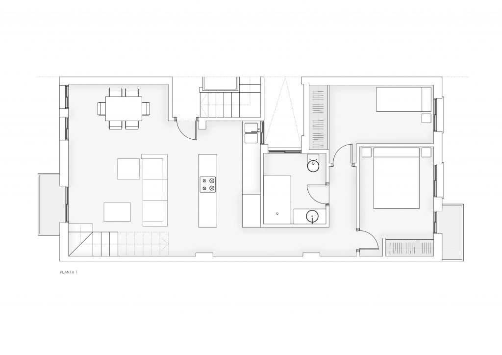
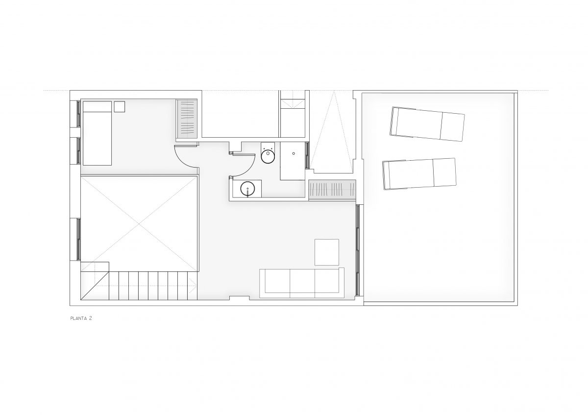
Colaboración en la distribución y diseño de 4 viviendas tipo de 80 m2, y dos áticos tipo dúplex de 120 m2 con terrazas de 25m2, en un proyecto de rehabilitación integral de un edificio residencial situado en la Gran Vía Fernando el Católico de Valencia.
El proyecto contempla rehabilitar tanto las viviendas como las zonas comunes del edificio, fachadas, cubiertas e instalación de nuevo ascensor en el interior del hueco de escalera preexistente.
Año: 2015
Cliente: particular
Superficie: 885 m2
Situación: Valencia
Fecha
- 11 mayo, 2016
